The Pinehill
- 3
- 2
- 15m
- 245m2
Championing a small frontage, the Pinehill beckons with an elevation that harkens back to a traditional farmhouse aesthetic. The welcoming elevation is a mix of rich weatherboard cladding, modern render and our trademark timber poles.
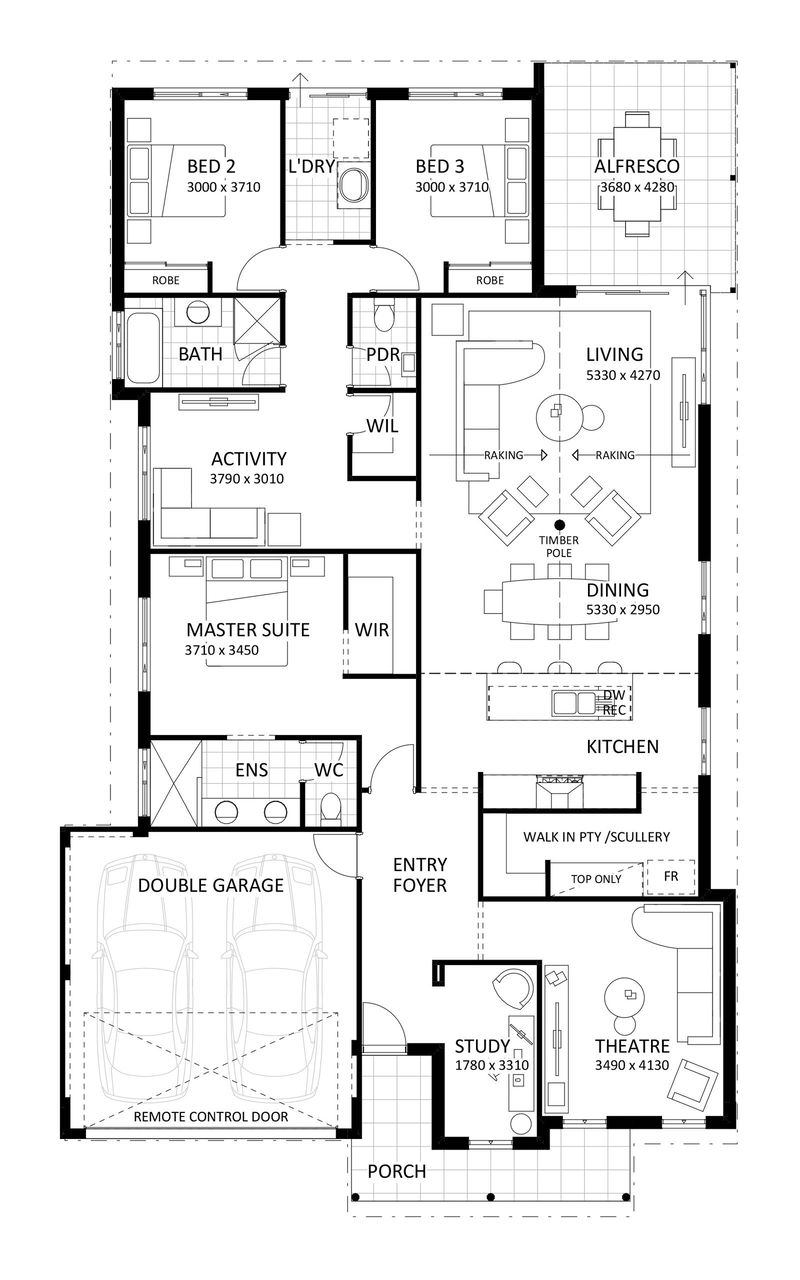
The distinct sense of rustic charm is enhanced in the centre of the home, where the floor plan unfolds into an open-concept living, dining and kitchen area. Immense raking ceilings promote a lofty, inviting atmosphere that flows effortlessly out to a paved alfresco. This outdoor space is a natural extension of the home, encouraging the living area to overflow into the garden. Further adorning this room is a bush pole, infusing an organic touch of Australiana into the home.
Elsewhere, the layout is cleverly zoned to maximise social spaces and private corridors. From the entry foyer, a dedicated study opens up at the very front of the home, positioned perfectly to capture moments of privacy away from bedrooms and communal spaces. A theatre is found around the corner, tucked away for a cosy touch. An additional activity nook, spacious and well-appointed off the main living area, serves as a threshold to the children’s bedrooms at the rear of the home.
Enquire Now
Floorplan and Inclusions
- Bed 3
- Bath 2
- Total Area 245m2
Inclusions
- Lifetime structural warranty
- 900mm Westinghouse oven and hotplate
- Soft closing cabinetry doors and drawers
- Vitrum surfaces by Qstone, crystalline silica free solid composite benchtops to the Kitchen, Ensuite and Bathroom
- Hobless showers with semi frameless pivot door
- Mitred tiling with $50/sqm allowance
- Extensive choice of quality Vito Bertoni tapware
- Back to wall toilet suites
- Continuous flow Hot Water System
- 3.5Kw solar power system
Features
- activity
- alfresco
- study
- master suite
- built in robes
- theatre
- scullery
Make it your own
We understand that your home is about lifestyle, personal choice and values. It’s about individuality, design, image, sustainability, romance and flair.
We encourage you to be actively involved in the design of your home. From the initial brief with your consultant to subsequent meetings with the team, we will co-create your dream home, so it’s perfect for you in every way.
Get in Touch
Whether you’re looking to browse our range of beautiful home designs, view our inspirational display homes, or build a custom home, contact us today and discover Rural Building Co.’s better building experience.

