The Evergreen
- 4
- 2
- 15m
- 278m2
A smaller frontage bedecked with weatherboard cladding and stylish render announces the Evergreen, an innovatively designed home suited to urban backdrops. The interior promotes both intimately private and inviting social spaces, offering the best of both worlds.
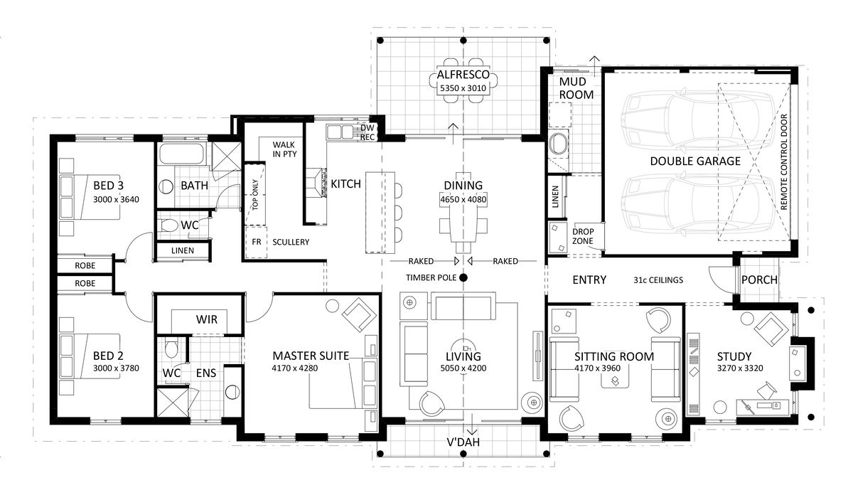
Branching from the welcoming entry is a wraparound hallway. The children’s bedrooms are uniquely situated along this expanse for a sense of privacy from the rest of the home, clustered around a retreat that functions cleverly as an activity nook or dedicated play zone. This wing allows the younger members of the family to congregate in cosy seclusion away from the main living space, and is just across the hall from a home theatre for added entertainment.
Continuing down an elegant gallery-style hallway, the home opens up into a sweeping free-form living space designed to bring the family together. A bush pole in the centre grounds the room with natural, rustic warmth, while the soaring raked ceilings encourage natural light and refreshing air to flow in from the immense outdoor entertaining area. This part of the home is a sociable and intrinsically functional space, especially the kitchen, which is equipped with a large scullery and generous walk-in pantry.
Enquire Now
Floorplan and Inclusions
- Bed 4
- Bath 2
- Total Area 278m2
Inclusions
- Lifetime structural warranty
- 900mm Westinghouse oven and hotplate
- Soft closing cabinetry doors and drawers
- Vitrum surfaces by Qstone, crystalline silica free solid composite benchtops to the Kitchen, Ensuite and Bathroom
- Hobless showers with semi frameless pivot door
- Mitred tiling with $50/sqm allowance
- Extensive choice of quality Vito Bertoni tapware
- Back to wall toilet suites
- Continuous flow Hot Water System
- 3.5Kw solar power system
Features
- activity
- master suite
- built in robes
- home theatre
- outdoor entertaining
- scullery
- free form living
Make it your own
We understand that your home is about lifestyle, personal choice and values. It’s about individuality, design, image, sustainability, romance and flair.
We encourage you to be actively involved in the design of your home. From the initial brief with your consultant to subsequent meetings with the team, we will co-create your dream home, so it’s perfect for you in every way.
Get in Touch
Whether you’re looking to browse our range of beautiful home designs, view our inspirational display homes, or build a custom home, contact us today and discover Rural Building Co.’s better building experience.

